Proben im B36

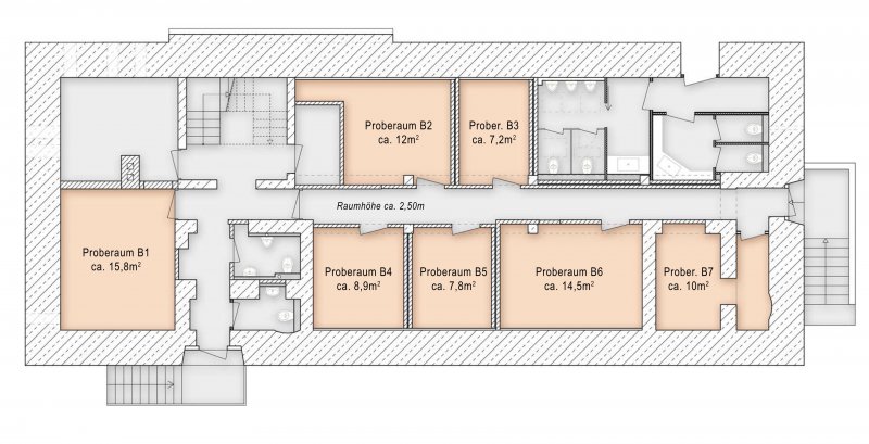
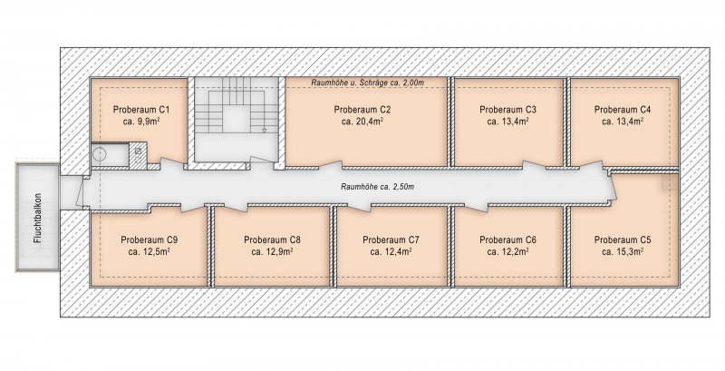
Der Bunker B36 liegt in Findorff in der Neukirchstraße und ist nach dem Vorbild des benachbarten Bunkers B35 zu Proberäumen umgebaut worden. Es sind 24 Proberäume zwischen ca. 6,0 m² – 28,0 m² entstanden.

B36 - November 09
B36 - Obergeschoss
B36 - Hochparterre
B36 - Souterrain