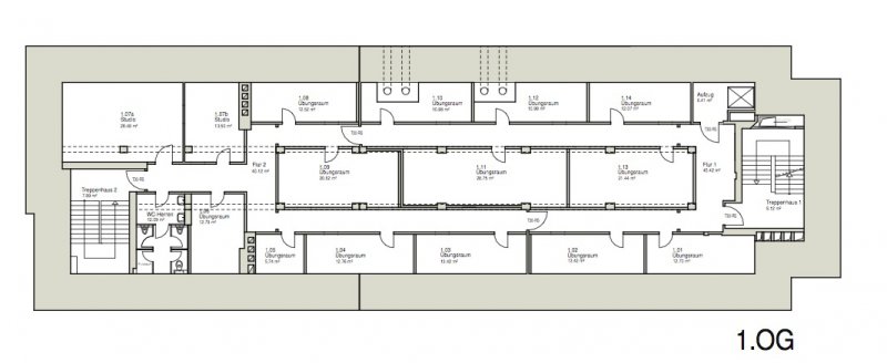
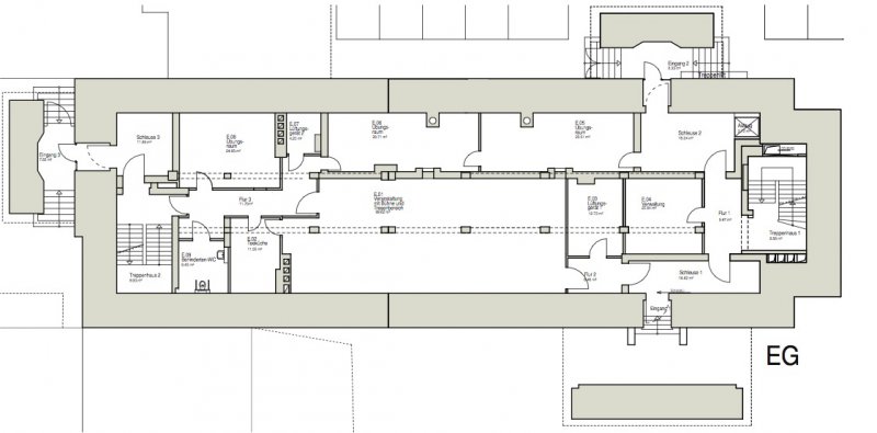
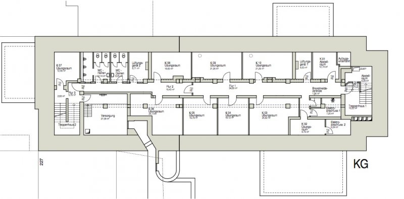
Proben im Bunker

Der Bunker ist zu Proberäumen umgebaut worden. Es sind 69 Proberäume zwischen ca. 6,0 m² – 42,0 m² entstanden.

kassel4.jpg
kassel3.jpg
kassel2.jpg
kassel1.jpg
kasseleg.jpg
kasselkg.jpg

Pläne als PDF

Kontakt